loading...
€340,000
€340,000

2 Bedrooms Apartment For Sale in Mosta

MLS: 240221028-3053
2 Bedrooms
1 Bathrooms
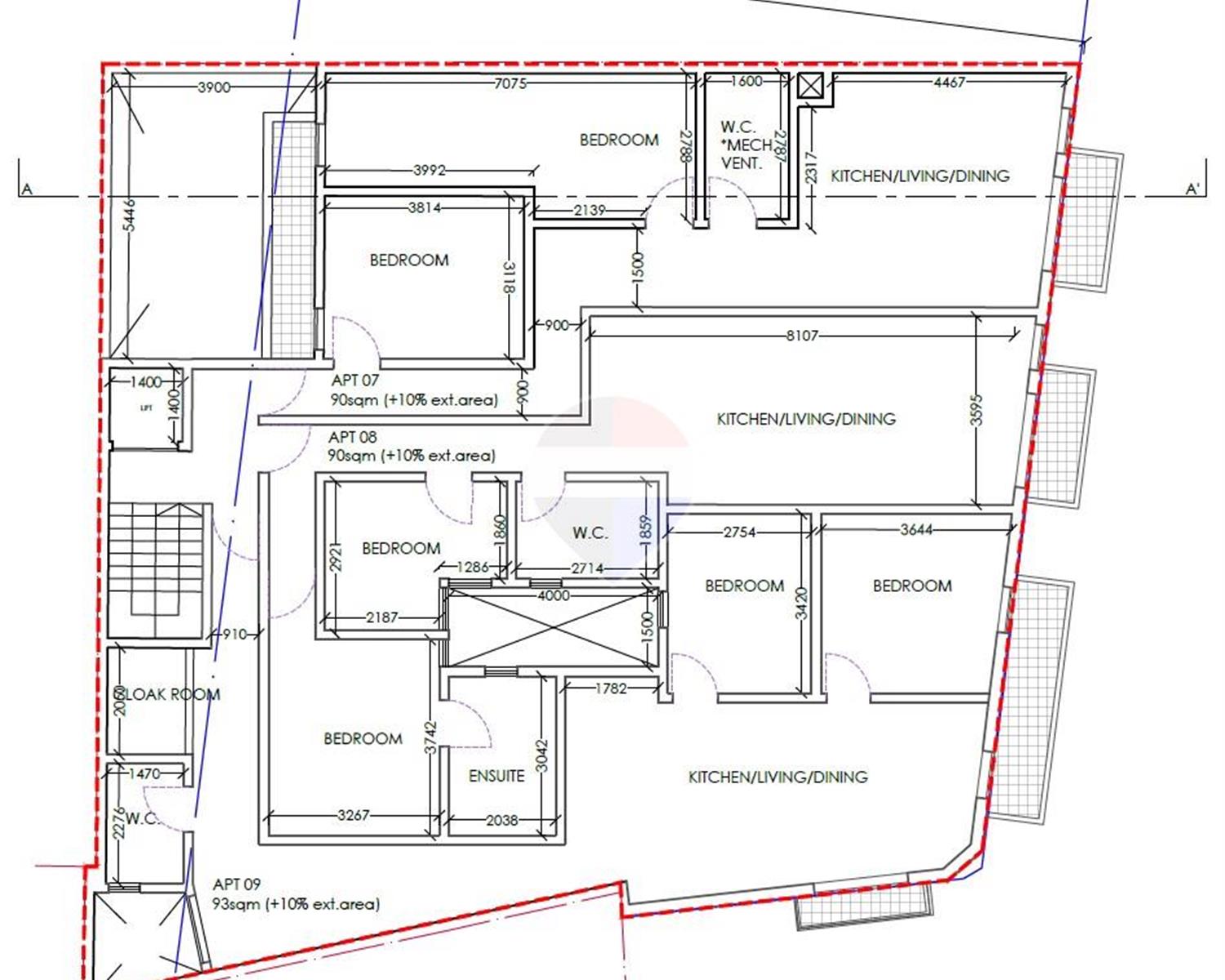
MOSTA - A brand new block being offered at pre-construction phase situated in a quiet part of this sought after village. The property is being sold finished excluding bathrooms and internal doors. This Apartment comprises of an open plan Kitchen, Living and dining which leads to a small yard, 2 double bedrooms and a bathroom. Optional garages are available. Freehold

Rooms & Sizes

Kitchen/Living/Dining 2.31 x 4.46= 10.3
Double Bedroom 2.78 x 7.07= 19.65
Double Bedroom 3.11 x 3.81= 11.85
Bathroom 2.78 x 1.6= 4.45
Open Space 5.44 x 3.9= 21.22

Features

  • Ceramic Floor
  • En Suite
  • Entrance Hall
  • Electricity Utility
  • Gypsum Plastering
  • PVC Piping
  • Skirting
  • Passenger Lift
  • Double Glazed
  • Back Yard
  • Video Intercom
Are you interested in this property?
Fill in the form and one of our associates will be in contact with you shortly.